Обяви За нас Контакти
Продава 4-СТАЕН
град София, Овча купел
ул. Народен герой
245 700 €
480 547.43 лв.

(1 755 €, 3 432.48 лв./m2)
Цената е без ДДС
Коригирана в 15:34 на 28 ноември, 2025 год.
Обявата е посетена 10150 пъти.
Площ:
140 m2
Етаж:
1-ви от 6
Газ:
ДА
ТEЦ:
НЕ
Строителство:
Тухла, Ще бъде въведен в експлоатация 2026 г.

Описание на имота:


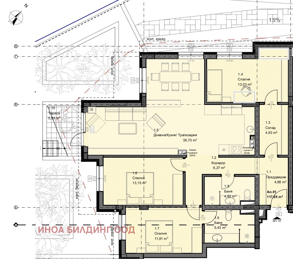
Инвеститор продава апартамент в новострояща се сграда, без комисион от купувач. Сградата има Акт 14 и удостоверение по чл. 181. Жилището се намира на първи партерен етаж, изложение югозапад и запад, и се състои от входно антре, дневна с кухненски бокс, три спални, две бани с тоалетни, склад и прилежащ двор с площ от 109кв.м., който се продава на цена от 35330 EUR без ДДС. Общата площ е 140,40 кв.м., от които 117,65 кв.м . застроена площ и 22,75 кв.м.общи части. Възможност за закупуване на подземни паркоместа и гаражи.
Местоположение: Жилищната сграда е разположена в старата част на кв. Овча купел, на ул. Народен герой 15, и съчетава комбинация от стил, удобство и достъпност. Районът е с отлично развита инфраструктурна среда. На пешеходно разстояние от сградата се намират спирки на множество автобусни линии, както и училища, детски градини, магазини, банки, аптеки и др. От част от жилищата се разкрива гледка към планината Витоша.
Изпълнение: Сградата е с един вход и предлага разнообразие от апартаменти, отговарящи на всякакви нужди и предпочитания. Големите дневни и просторните спални гарантират комфорт и уют. Паркирането е решено с подземни и надземни паркоместа и гаражи. Отоплението е предвидено на газ, дограмата е PVC 5 камерна с троен стъклопакет, 12 см. топлоизолация по външни стени, електрически асансьор с автоматични врати и достъп за инвалиди.
Начин на плащане: Разсрочена схема на плащане, съобразена с етапите в строителството.
Особености
Тухла
За контакт:
0888465111
Инвеститор:
ИНОА БИЛДИНГ ООД
0888465111
В imot.bg от 2024 г.
inoabuilding.imot.bg
Адрес:
област София, гр. София, ул. Кутловица 29 партер
ИЗПРАТИ ЗАПИТВАНЕ
ИЗПРАТИ ЗАПИТВАНЕТО

Продава 4-СТАЕН
град София, Овча купел
ул. Народен герой
Обява: 1d171873401865004

245 700 €
480 547.43 лв.
(1 755 €, 3 432.48 лв./m2)

Цената е без ДДС
ЗАПАЗИ ОБЯВАТА

Местоположение: град София, Овча купел, ул. Народен герой

Допълнителни данни за имотите в района и сравнение с други райони

Покажи

Период

* Средните цени са определени чрез медианна стойност